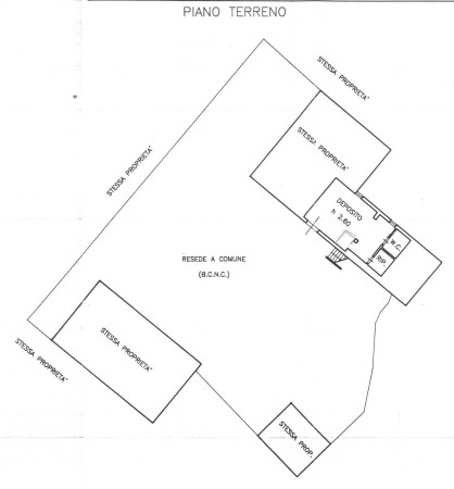
Terratetto libero su 3 lati con ampio giardino esclusivo e terreno, Cantina, Autorimessa e Rimessa in corpo staccato. Agenzia Immobiliare 1 propone in VENDITA, nel Comune di Castelfiorentino, a 2 km dal centro, porzione terratetto libero su 3 lati, con una superficie commerciale complessiva di mq 220 circa. L'abitazione principale si trova al piano primo con accesso da scala esterna e si compone da: ingresso, cucina abitabile con camino, soggiorno, tre camere, studio, disimpegno zona notte e bagno oltre la soffitta di mq 40 circa + terrazzo di mq 70. Con accesso indipendente direttamente dal giardino e collegato al piano primo con ascensore esclusivo, si trova il locale di sgombero con bagno e ripostiglio di mq 40, molto bello e luminoso (attualmente adibito a monolocale) + la cantina di 25 mq con bagno e l'autorimessa di 37 mq, il tutto al piano terreno. Completano la proprietà il Giardino Esclusivo, Terreno e bosco per totali mq 10.000, tutto pianeggiante e ben fruibile. In corpo staccato la Rimessa per totali mq 150 disposta su due piani. In adiacenza parcheggio privato che potrebbe all'occorrenza essere ingrandito a proprio piacimento senza particolari limiti. A disposizione della proprietà vi è anche un ulteriore autorimessa di circa 22 mq. Piano Terra mq 25 circa (cantina); Piano Terra mq 40 circa (locale di deposito adibito a monolocale); Piano Terra mq 37 circa (autorimessa); Piano Terra mq 150 circa (la rimessa); Piano terra mq 22 circa (autorimessa); Piano Primo mq 125 circa (abitazione); Terreno mq 10.000 circa. Immobile in ottime condizioni, caldaia ibrida a GPL e fotovoltaico, stufa a pellet in cucina e condizionatore. L’Agenzia Immobiliare1 ci tiene a precisare che per motivi di privacy la posizione riportata su mappa in certi casi può essere soltanto indicativa della zona. Per tutte le precisazioni necessarie e la documentazione ufficiale, potete recarvi presso i nostri uffici a Castelfiorentino, in Via Palestro 16, Telefono – email: Per identificare immediatamente l’annuncio, prendete nota del codice di riferimento che identifica in maniera univoca ogni nostra offerta. La nostra agenzia non utilizza annunci “civetta”, ma tutti gli annunci che vengono pubblicati sono reali, regolarmente revisionati ed aggiornati all’occorrenza. Operiamo sempre con la massima professionalità, correttezza e trasparenza. Siamo a vostra disposizione.

