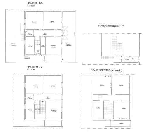
L’Agenzia Immobiliare 1 propone in vendita nel cuore di Castelfiorentino, in posizione strategica, vicina a tutti i servizi: una villetta con ingresso indipendente, distribuita su due livelli abitativi e un ulteriore piano soffitta, perfetta per chi cerca comfort e versatilità. Attualmente, l’immobile si compone di due unità abitative distinte e indipendenti, ideali sia per famiglie numerose che per chi desidera un'ottima opportunità di investimento. La prima unità, situata al piano terra rialzato tramite scala esterna, che conduce all’ampio disimpegno. Ogni ambiente è ben collegato: dalla cucina abitabile, dotata di finestre e una porta finestra che apre sul resede esclusivo, al luminoso soggiorno, una camera matrimoniale, una camera singola, due pratici ripostigli e un bagno finestrato. Ogni spazio è pensato per offrire comfort e funzionalità. Salendo al piano primo, troviamo il secondo appartamento, anch'esso con accesso indipendente, che esplora ulteriormente le potenzialità della casa. Un ampio ingresso/disimpegno conduce a una cucina abitabile, un accogliente soggiorno, una camera matrimoniale, una camera singola e un secondo bagno finestrato oltre la soffitta che offre la possibilità di essere sfruttata come ulteriore spazio abitativo, dando modo di personalizzare ulteriormente l’immobile secondo le proprie esigenze. Esternamente, la palazzina è in buone condizioni; il tetto è stato recentemente ristrutturato, garantendo una struttura solida e sicura. Gli interni dei due appartamenti necessitano di interventi di ristrutturazione, un'opportunità per esprimere la propria creatività e ottimizzare gli spazi in base al proprio stile di vita. La nostra agenzia immobiliare opera dal 1994 nel settore dell'intermediazione immobiliare ed è punto di riferimento nella zona della Valdelsa per quel che riguarda la compravendita e le locazioni di appartamenti, coloniche, case e altri immobili. Ci tiene a precisare che per motivi di privacy la posizione riportata su mappa in certi casi può essere soltanto indicativa della zona, così come le piantine degli immobili (quando presenti) servono esclusivamente ad illustrare e far capire la disposizione degli interni. Offriamo valutazione gratuita del Vostro immobile in caso di vendita. Non utilizziamo annunci "civetta" e tutti gli annunci che vengono pubblicati sono reali, regolarmente revisionati e periodicamente aggiornati. Ci troviamo in Via Palestro n. 16 a Castelfiorentino (FI). Tel: 0571.61843.

