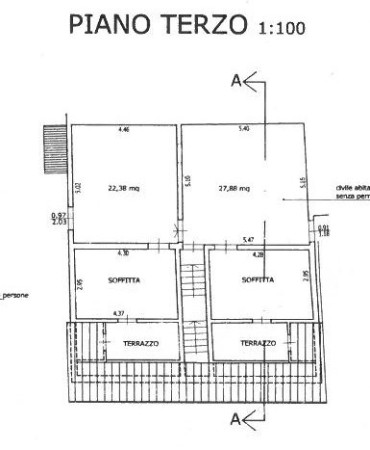
Agenzia Immobiliare 1 propone in vendita Loc. Fontanella - Comune di Empoli, in piccola palazzina (ingresso a tre), due appartamenti allo stato grezzo: un bilocale posto al piano secondo composto di cucina - soggiorno, camera matrimoniale e bagno e l'altro appartamento di quattro vani disposto su due livelli (piano 2° e 3°) è composto al piano secondo di cucina, soggiorno e con accesso da scala in muratura al piano terzo e ultimo di due camere matrimoniali, due locali soffitta e due terrazze a tasca. Annessa cantina al piano terra di mq 20 circa. Essendo ancora allo stato grezzo, l'immobile offre la possibilità di personalizzazione sia nelle rifiniture sia nella distribuzione degli spazi. La nostra agenzia immobiliare opera dal 1994 nel settore dell'intermediazione immobiliare ed è punto di riferimento nella zona della Valdelsa per quel che riguarda la compravendita e le locazioni di appartamenti, coloniche, case e altri immobili. Ci tiene a precisare che per motivi di privacy la posizione riportata su mappa in certi casi può essere soltanto indicativa della zona, così come le piantine degli immobili (quando presenti) servono esclusivamente ad illustrare e far capire la disposizione degli interni. Offriamo valutazione gratuita del Vostro immobile in caso di vendita. Non utilizziamo annunci "civetta" e tutti gli annunci che vengono pubblicati sono reali, regolarmente revisionati e periodicamente aggiornati. Ci troviamo in Via Palestro n. 16 a Castelfiorentino (FI). Tel: 0571.61843.

