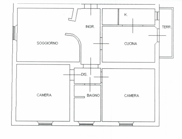
Agenzia Immobiliare 1 propone in vendita in zona centrale di Castelfiorentino, appartamento luminosissimo, completamente ristrutturato di recente posto al piano secondo e ultimo in una palazzina con infissi, facciata e tetto nuovi. L'immobile libero su tre lati si compone da ingresso-disimpegno, sala pranzo con angolo cottura, terrazzo e ripostiglio, soggiorno con camino, due camere matrimoniali e bagno finestrato oltre la soffitta praticabile esclusiva. Impianto idraulico ed elettrico nuovi. Caldaia a metano nuova. L’Agenzia Immobiliare1 ci tiene a precisare che per motivi di privacy la posizione riportata su mappa in certi casi può essere soltanto indicativa della zona. Per tutte le precisazioni necessarie e la documentazione ufficiale, potete recarvi presso i nostri uffici a Castelfiorentino, in Via Palestro 16, Telefono 0571 61843 – email: info@immobiliare1.it Per identificare immediatamente l’annuncio, prendete nota del codice di riferimento che identifica in maniera univoca ogni nostra offerta. La nostra agenzia non utilizza annunci “civetta”, ma tutti gli annunci che vengono pubblicati sono reali, regolarmente revisionati ed aggiornati all’occorrenza. Operiamo sempre con la massima professionalità, correttezza e trasparenza. Siamo a vostra disposizione.

